【博艺新作】平湖壹号|160m²用光穿越空间 让暗黑系也自带温度
——
小区名称—平湖壹号
户型面积—160m²
装修风格—现代
设计师—姚晓琴
项目经理—邱培芳
装修公司—博艺装饰
实景摄影—Beny
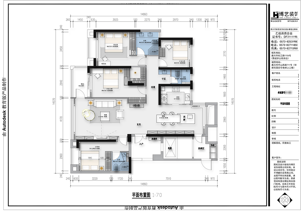
1. 这个户型是三代同堂六口人居住,我们保留了户型四房的格局。为了让公区更加宽敞舒适,我们打通了一半的南阳台,扩充到了客厅。另外一半留给卧室做了休闲阳台。
2. 同时,我们保留了三个卫生间,主卫做了双台盆,公卫做了干湿分离,满足各个时段家人之间的需求。
3. 打通北阳台,餐厅以整排餐边柜,岛台,餐桌的形式来呈现。
4. 主人房和父母房都以独立的套房形式存在,保留各自的生活习惯。
5. 改变玄关位置,让玄关既起到观景作用,背面又扩容进女儿房,兼顾美观和实用。
▌客厅
打通南北阳台,采用开放式的设计,将整个公共区域融洽得组合在一起。用石材、岩板,格栅,玻璃,板材等基材,再辅以布艺,真皮,软垫,在整个沉稳硬朗的基调中注入温润舒适,使之达到平衡。
▌餐厅
岛台的设置让整个餐厅空间形成了洄游动线,在岛台配置洗手池,在下方放置储物空间。和孩子们做个烘培,和爱人洗个水果,喝个下午茶,和老人吃个早餐……有家人的陪伴和参与,烹饪也不再是一个“苦差事”。
▌厨房
厨房曾被称之为家里最孤独的地方,但是随着互动式家居设计的流行,这种孤独感也逐渐在被打破。六口之家,家里开火的时间很多,用四联动的玻璃移门进行隔断。热爱生活的人都热爱烹饪,而热爱烹饪的人总是懂生活的人。岛台冰箱外置,形成了很大的拿取洗切煮的大动线,再多人参与都不再话下。阳光和煦,微风浮动,菜香四溢,家人围坐,我想这就是幸福的味道吧。
匆忙的生活总是在归家后放慢脚步,平和自身的心态。白天见惯了各色浮躁的色彩,我们更渴望纯净的世界。黑白灰的纯粹俘获内心,抚平焦虑,让心归于平静。
家人之间,我们需要亲密无间,同时我们也要为彼此创造各自独自的生活。主人房和父母房做了单独套房,各配备了独立卫生间。作为家里的公卫,我们做了干湿分离,也修饰了原本狭长的过道,使得整个过道空间看上去更为宽敞。
姚晓琴
博艺装饰平湖设计部经理
设计理念:只做能“落地”的设计。
从业时间:16年
代表案例:海德城联排、东湖雅苑、滨江万家花城、龙湖春江华庭、平湖壹号、东湖半岛、东湖明珠 、锦绣庄园别墅…
邀约量房:
微信直接回复:地址+面积+姓名+手机号
或咨询电话/微信:13372313151 博艺装饰






