御华名都|450m² “墅”造 “简”与“奢”的平衡 相聚独处兼相宜
“简”与“奢”
是人们对极致的追求、挑战和超越……
↓
—
小区名称—御华名都
户型面积—450m²
装修风格—现代
设计师—于俊
项目经理—李小六
装修公司—博艺装饰
实景摄影—Beny /鄧開基
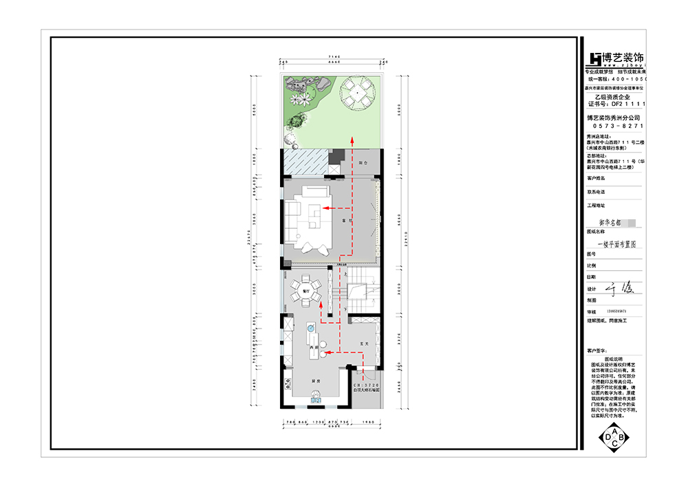
一 楼
这是一套联排别墅案例,地面三层,地下一层。我们在一楼主要规划了公区的设计,户外景观花园,观景,品茗都无比惬意。中西厨的设计,满足家人之间不同的需求。客厅处做了下沉式设计,让整个客厅层高更高,更加气派。用数步台阶移步到餐厅,让聚餐更有仪式感。
▍客 厅



设计师以经典的黑白灰色调入手,调和着现代住宅对于低调质感生活的追求。通过合理运用玻璃,石材,格栅,不锈钢,布艺,皮质等不同材质,融合进整个一楼公区。无主灯的设计搭配下沉式空间,让整个客厅区域彰显气质。电视机的黑色大理石背景和沙发的白色大理石背景遥相呼应,在黑白之间,打造无限延伸的空间感。
整个公区我们尽量让视野开阔,避免采用生硬的隔断,从而让整个空间更加整体。我们更多得采用玻璃等通透的材质,让光线贯穿,阳光正好,微风不燥。
▍餐 厅
开放式的岛台作为厨房和餐厅之间的过度,也保留了西厨的使用功能。
中国人向来讲求天圆地方,整面的落地窗让室内一直都有均匀的光线,也给餐厅注入新的温度。当餐厅上升腾起热气,弥漫开香味,我想这才是生活的痕迹。
▍楼 梯
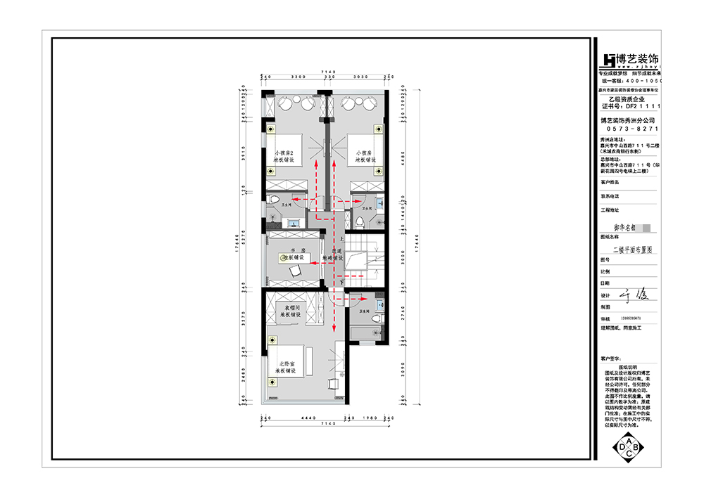
二 楼
二楼两个朝南采光最好的位置留给孩子。两个房间呈现对称的套房设计,两个独立的卫浴空间搭配卧室和休闲空间,再加上独立书房的配置,让彼此既有独处的空间,又不影响兄弟间的共同成长。
▍儿童房
两个儿童房呈现对称设计,几乎复刻了功能,但是又有细微的差别,这种求大同存小异的设计理念,也是主人一家的生活态度。我们始终觉得家里的每个人都需要一个自己独处的空间,也需要有连接亲情的共同场所。
▍书 房


除了各自的卧室洗漱空间,二楼的书房是兄弟俩共用。我们选择了较大台面的空间,可以让他们共同学习工作,就像一条无形的纽带,把家人之间的关系凝集地更加紧密。
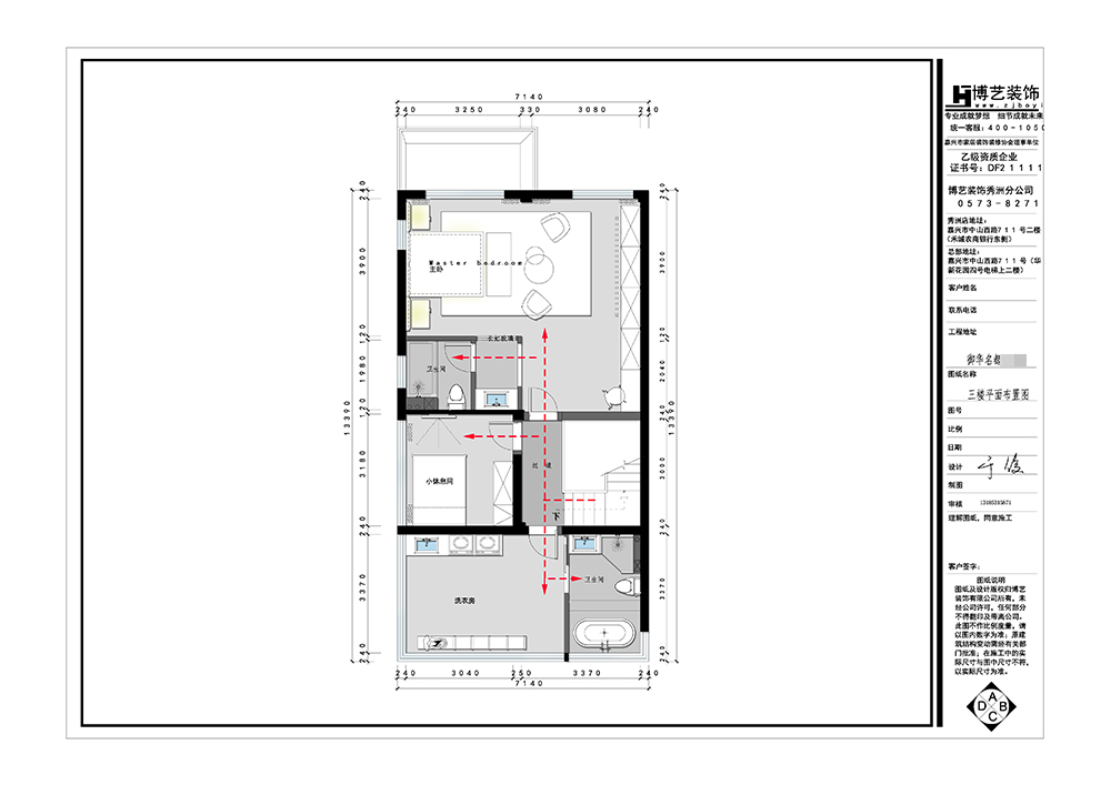
三 楼

三楼则是做了一个主人的大套房设计,主卫做了干湿分离,干区用长虹玻璃进行隔断,增加整个干区采光。在床尾设置了简单的工作区,偶尔可以安静办个公。在主卧外,还涉及了一个小的休息间,可供平时偶然午休打个盹。北面空间则留做了洗衣房和浴室,泡完澡直接进把洗漱完的衣物留在洗衣房,动线一气呵成。
▍主 卧



主卧用了一整个大套房的设计,休息区,收纳区,洗漱区,晾晒区,小憩区,安排得井井有条。整个色系布置都静谧宁静,用白色为主基调,掺进细腻的奶咖色,平添了层次感,让空间一下柔了起来。
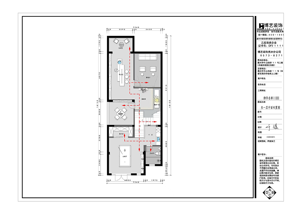
地下室

地下室主要规划成了一家人的休闲空间,影视厅,台球室,水吧台,所有的休闲娱乐设施应有尽有,满足了全家人的休闲时光。
▍茶 室


▍娱 乐 室
如果说生活还可以延展,那么撇开居住的功能需求,地下室则是一个非常好的休闲娱乐枢纽,涵盖了影音室,台球室,水吧台等等空间,非常适合朋友聚会。同时为了避免地下空间的天然光线不足,摆脱地下室沉闷的刻板印象,整个楼梯从三楼环绕贯穿,在地下空间形成好看的天井观景区,清晨阳光洒落,绿植错落,沐浴阳光,生机盎然。
本案设计师
于 俊
博艺首席设计师
设计理念/ 设计源于生活,融与生活。
从业时间/ 16年
代表案例/ 中梁壹号院瑜璟墅、秀湖印象、弘玺台、上湖轩、秀悦湾、秀湖金茂府、江南国际城、朗润园、久镜园…
邀约量房:
微信直接回复:地址+面积+姓名+手机号
或咨询电话/微信:13372313151 博艺装饰






