百福公寓 90m²|95后的婚房,告诉你小家显大的秘诀
——
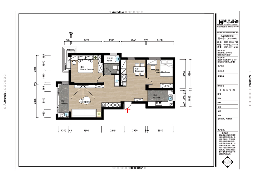
小区名称—百福公寓
户型面积—90m²
装修风格—现代
设计 师—王芳
项目经理—谢林坤
装修公司—博艺装饰
实景摄影—Beny / 鄧開基
▼
1.重新规划空间,使生活动线更流畅;
2.原始的餐厅位置改为门厅,打开玄关空间;
3.将原来储藏间的位置改为餐厅,增加西厨区,丰富厨房功能;
4.卫生间改为干湿分离,释放空间;
5.次卧做成儿童房,满足生活需求。
▊ 客 厅
打通了南阳台,把餐厅往内移,客厅一下从视野上打开。选用了大面积的米色墙面,营造宁静而柔和的氛围。全屋通铺地板,以及同色系柜子,搭配去茶几化的设计让客厅更具松弛感。
沙发后背悬放的艺术画作,红与黑的碰撞,质朴的风格和简单的色系,起到了点睛作用,一个大红色的边几一下成为客厅的视觉中心,又与画作互相呼应,偶尔放个水果,喝个咖啡,功能足够,同时又不显得凌乱。沙发上三盏射灯射下,客厅也一下有了仪式感。
▊ 餐 厅
进门后把餐厅往内移,建立缓冲区,也增添了回家的仪式感。餐桌选用圆润的边角,网红的仓迪加尔椅营造舒适的就餐环境,崇尚“断舍离”的现代,简单精致的生活就足够平添温馨和诗意。半透明的帘布柔化了自然光的直射,将阳光雨露都化成生活自然的滤镜。
把西厨和冰箱位置安置在了餐厅,上面整齐的陈列展示着主人一家的生活品味和知性情趣。随处可见的喜字也宣告着主人甜蜜幸福的婚姻生活的开启。
▊ 厨 房
把冰箱挪出厨房后,厨房面积也一下开阔了,木色的橱柜面和白色的台面在灰色的墙面背景下相映成趣,营造了干净整洁的烹饪环境。
▊ 卧 室
主卧色系延续了客厅的奶茶色系,静谧柔和。主卧利用了飘窗位,一个专属女主人的化妆间就应运而生,在黑与白的空间里,是女主人对美的极致追求。
▊ 卫 浴
木质地板的自然纹理和光泽,给整个家居带来了沉稳的基调,公区与卫生间之间用了长虹玻璃门,透光的同时,兼顾了美观。
▊ 本案设计师
王芳
博艺装饰整装设计师
设计理念:与空间对话,拉近与生活的距离。
从业时间:19年
代表案例:
晴雪园、百福公寓、格兰上郡、田乐自建房、王江泾自建房、天骄花园、翰林兰亭…
邀约量房:
微信直接回复:地址+面积+姓名+手机号
或咨询电话/微信:13372313151 博艺装饰






