华梦锦园 125m²|让家宽敞有序 黑的毫无压力
小区名称—华梦锦园
户型面积—125m²
装修风格—现代
设计 师—陈彬
项目经理—陈建峰
装修公司—博艺装饰
实景摄影—Beny / 鄧開基
▼
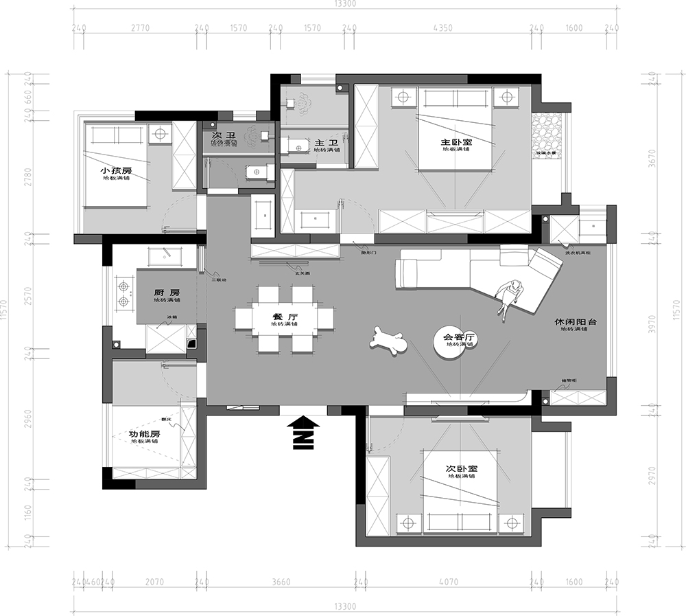
1、打通南阳台并做高柜,把洗衣机,烘干机都隐藏起来,形成大横厅模式 。
2、改变主卧进门,并做了隐形门。对外,利用空间在餐厅做餐边柜,增加进门的视觉缓冲和储物空间,统一定制,整体统一。对内,卫生间做干湿分离,增加收纳。
3、次卧储藏间合并,增加收纳,更加便利实用。
▋ 客 厅
整个色调选用炫酷,个性的暗黑系为主色调,将整个黑色系大胆地从地面延生到墙面,深色调的安静包容与轻奢高冷在这里展现的淋漓尽致。
为了不让暗黑系显得过于压抑,客厅选择了白色的电视背景墙来进行中和。柔软的布艺抱枕,舒适的绒质地毯,也让客厅的温度一下回温。同色系的木饰面和石材的搭配,柔和中带着原始的碰撞,艺术感拉满。
一个红色单椅,一支鲜活绿枝,点睛般地提亮了空间,瞬间打破整个空间的沉闷感,让整个客厅展现蓬勃的生命力。
▋ 餐 厅
一组餐边柜担当了餐厅收纳的重要角色。点睛的装饰画与客厅火红的单椅互相照应,互相对话。
▋ 卧 室
主卧延续了整体暗黑系的风格,打掉了飘窗,尽可能的拓展了空间,同时也让光线更好得融入,并尽可能的做好收纳。黑色的床背和窗帘搭配白色的墙面和天花,在黑与白的世界里营造一个安静且不昏暗的清静环境。
▋ 次 卧
▋ 本案设计师
陈 彬
博艺首席设计师
设计理念:赋予空间以思想、赋予空间以生命
从业时间:11年
邀约量房:
微信直接回复:地址+面积+姓名+手机号
或咨询电话/微信:13372313151 博艺装饰






