绿禾名邸 106m²| 伴是烟火,伴是生活
▼
小区名称—绿禾名邸
户型面积—106m²
装修风格—现代
设计 师—吴雨洁
项目经理—蔡飞龙
装修公司—博艺装饰
实景摄影—壶里视创
▼
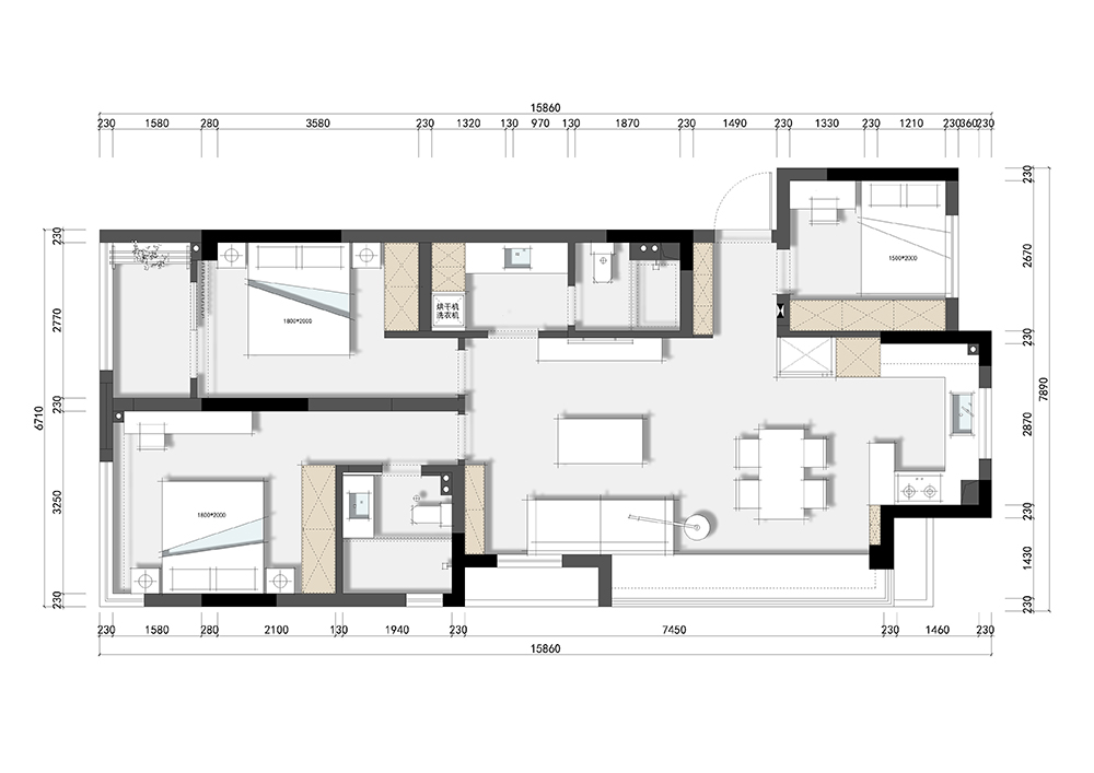
本案的户型属于狭长型,在布局上设计师基本保持户型原有的格局,在区域内将空间尽可能打开,提高生活舒适度。公共区域的客、餐、厨做联动设计,功能不变空间扩大,同时三区联动增加家庭成员的亲密度。色彩上以温馨的奶油白为主色调,灰色、棕色、绿色分别以不同的形态点缀,共同组成生活的起点。伴是烟火,伴是生活。
▇ 客 厅
整个客厅采用原始顶,选用适用的轨道灯和点缀灯,做出了无主灯的效果。豆腐干式的三人位沙发憨态可掬,白色单人位圆润可爱,搭配橘色南瓜抱枕,趣味十足。在灰白色的素雅空间里展现松弛与舒适。
用一个小小的边几作为客厅和餐厅之间的过度,放上好酒好茶,共品音乐诗画。落地飘窗搭配百叶帘,让整个客厅蒙上了阳光的滤镜。
▇ 餐 厅
圆弧形的餐桌总给人感觉安全感满满,搭配不同造型的餐椅,别有一番风趣。鲜花,红酒,西餐,家里的仪式感也一样不少。
▇ 厨 房



打破了空间之间的阻隔,开放式的厨房布局让空间更加敞亮,并与餐厅融为一体。理,洗,切,烧,摆,一气呵成。
▇ 主 卧

编织的灯罩和家具总给人一种东南亚的异域风情。打掉了原来的飘窗和空调机位,主卧户型就变得非常的规整。靠近窗户一侧用梳妆台代替床头柜,兼顾功能和美观。
▇ 次 卧
打通了次卧和阳台,次卧采光就变得很好。同色系的床背景和柜子让整个空间看着更加整体。用地砖和地板做空间之间的隔离,拉上窗帘就是两个不同的空间。
▇ 卫生间
▇ 本案设计师
吴雨洁
博艺装饰设计师
设计理念:陈列美的享受是属于客户的,创意的快乐是属于设计师的!
从业时间:6年
代表案例:东方都市,罗马都市,云境园,金茂府,秀悦湾,城南印象…
邀约量房:
微信直接回复:地址+面积+姓名+手机号
或咨询电话/微信:13372313151 博艺装饰






