春晓源180m²|邂逅现代风,畅享品质生活
平凡琐碎的日子也要过成自己喜欢的样子。
—
小区名称—春晓园
户型面积—180m²
装修风格—意式极简
设计 师—薛佳平
项目经理—陈晓秋
装修公司—博艺装饰
▼
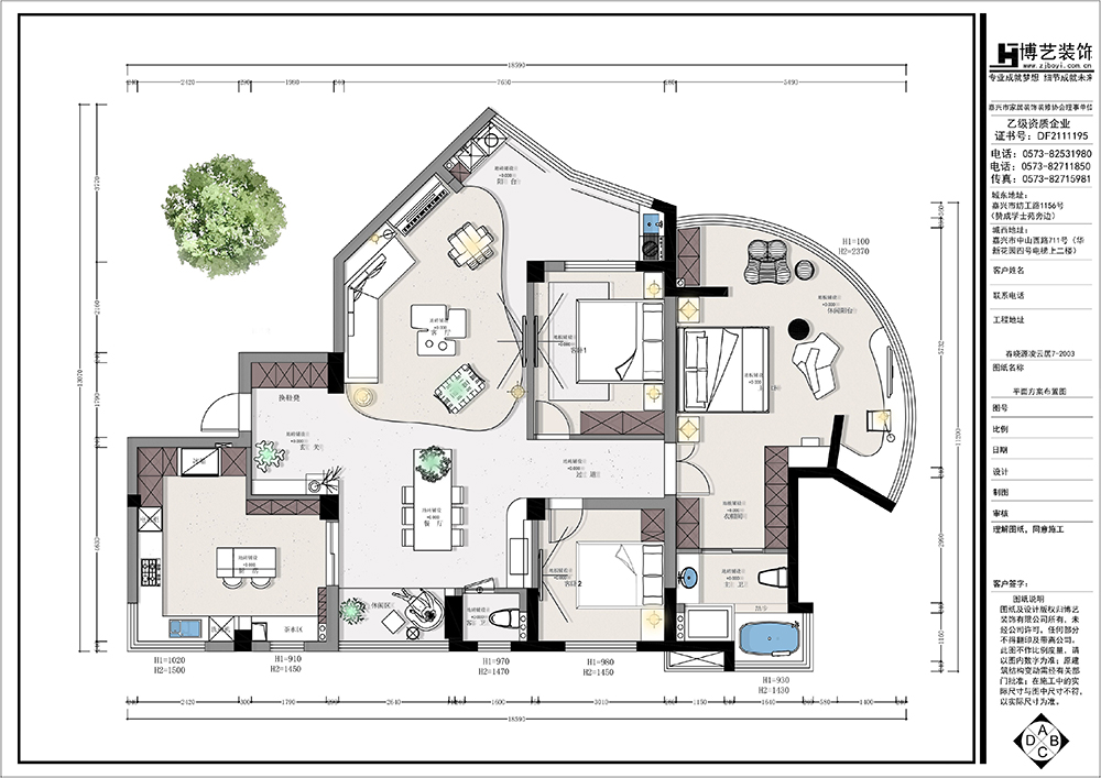
1、打通储物间与厨房形成中西厨超大厨房,并设计岛台,厨房功能更完备,L型直角采光,增加空间的通透性;
2、客厅延伸至阳台,充分吸收自然光线,利用户型的特点将生活阳台完美隐藏;
3、外卫做空间调整,把台盆外置,使餐厅更宽敞同时又规划出休闲区,生活与理想都要兼备;
4、主卧室做套房设计,利用阳台增加休闲区与书房功能,另外配置衣帽间,使居住功能更全面,同时提高生活舒适度,提升生活品质。
客厅自带广角视野,当阳台的光直接进入,整个场域变得宽敞又通透。线条与木作契合,搭配着石材一起勾勒出优雅的轮廓,营造宁静而舒适的生活氛围。
暖棕色与白色的组合赋予空间明亮沉稳的质感,一抹绿色悄然入眼给空间带来生机与自然元素,整个空间优雅却又不失时尚的活力。
▊ 餐 厅
与客厅相呼应的色彩搭配使公共区域的设计更为统一,充足的光线,绿植与水果创造出愉悦的用餐环境,提升用餐体验感。
▊ 厨 房



超大的空间满足多人同时操作的可能,完备的功能性满足现代家庭日常烹饪需求。
当烹饪不再受限,那美味将没有边界,用美食串联全家人的味蕾。
▊ 主 卧
弧形半环绕视角给予卧室无敌的采光,闲暇时光坐着按摩椅看着广阔的世界,“享受生活”从此有了具象。
浅奶咖的墙面,温柔、恬静,黑色的大床深邃、沉稳,强烈的对比,和谐的共处,共同营造一片舒适、安宁的睡眠环境。
▊卫生间
▊ 玄 关
▊本案设计师
薛佳平
邀约量房:
博艺嘉善店总经理
设计理念:让设计更贴近生活,用心体会身边的一切。
从业时间:19年
代表案例:塞纳蓝湾、玺越佳苑、孔雀城、海上风华、佳源英伦都市别墅、万科金域缇香联排、紫澜别墅、东菱宝石公馆、信达格兰英郡、四季江南、御景湾、临江景苑…
个人荣誉:
-2015年获得嘉兴市博艺装饰“金牌设计师奖”
-2016年获得嘉兴市博艺装饰“金牌设计师奖”
-2018年40 UNDER 40中国(嘉兴)设计杰出青年
-2018年获得嘉兴十大新锐室内设计师
-2018年获得嘉兴市博艺装饰“金牌设计师奖”
-2019年获得鹭栖湖最美院落设计大赛十佳作品
-2019年获聘中国高端室内设计大赛设计顾问
-2019年获得国际色彩设计大会一等奖
-2019年获得嘉兴市博艺装饰“金牌设计师奖”
-2020年获得金住奖中国(嘉善)十大居住空间设计师
-2021年获得金住奖中国(嘉善)十大居住空间设计师
微信直接回复:地址+面积+姓名+手机号
或咨询电话/微信:13372313151 博艺装饰






