翡翠四季140m²|是生活,更是奔赴的意义
因为我们心中有奔赴的方向,
所以平凡的日子才像是被点亮了一样,有了沉甸甸的意义。
▇
小区名称—翡翠四季
户型面积—140m²
装修风格—现代风
设计师—陆敏锫
装修公司—博艺装饰
▼
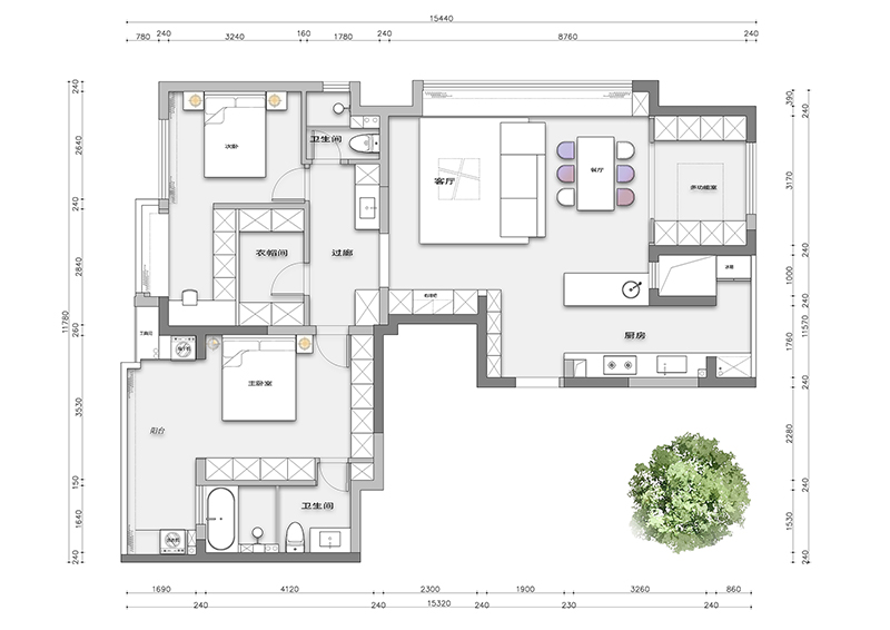
1.厨房打通至设备平台,增加使用面积,同时做敞开式设计,开拓视野;
2.增加岛台,桥接餐厅与厨房,将烹饪与社交自然融合;
3.设计衣帽间来增加储物功能,同时满足儿童房写作与收纳的需求;
4.生活阳台划入主卧室,增加空间的通透性,同时包容空间的功能性需求。
▇ 客餐厅
客餐厅一体化的布局尽显开阔与通透,再辅以简洁流畅的线条描述空间轮廓,突出空间的理性与秩序感。巨幅的飘窗台如时光的画框,引四季入画捕捉美学镜头。
简色的环境中,铺上黑白格的地毯增强空间感,再置入的酒红色沙发,造型简约却宛如点睛之笔,与同色系的餐椅相互呼应,于沉稳中释放一抹热烈,那是对生活的无限热爱。
餐桌上宛如球形的两盏玻璃花灯极具艺术之感,灯光流转间映射光芒,为用餐营造精致且富有格调的氛围。
▇ 主 卧
主卧延续客餐厅的红,以波浪的形状展现,木材所特有的属性平添了几分沉稳与质感,搭配的墨绿色床靠,绿色的床品,奶白色柜体,营造出空间的层次感,为居所带来清新自然的休息环境。
▇ 儿童房
深蓝色的墙布铺满墙,一张飞机结构图构成空间视觉主体,为孩子的梦想落下种子。白色的床体起到很好的过渡作用,缓解视觉上的沉重感。书桌的位置独立,明亮,为学习打造安静舒适的小空间。
▇ 厨 房
▇ 本案设计师
陆敏锫
博艺设计总监
设计理念:生活可以融入设计,设计可以主导生活。
工作时间:15年
社会荣誉:
国家注册室内工程师
金案奖 ·全国优胜奖
40UNDER40中国杰出青年
Hi- design 区域精英奖
代表案例:
名境园、翡翠四季、紫澜别墅、月河院子、禹德华庭、东望金邸 、东望隽府、云境园、启辰里、映樾庄、宝石公馆...
邀约量房:
微信直接回复:地址+面积+姓名+手机号
或咨询电话/微信:13372313151 博艺装饰






