家逸园140m²|黑白构序原木生温 筑就四口之家的成长诗篇
小区名称—家逸园
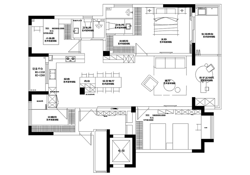
户型面积—140m²
装修风格—现代简约
设计师—张芳
项目经理—朱文军
装修公司—博艺装饰
▼
当极简的黑白遇见温润的原木,当一个家需要承载四口人的欢声笑语与静默成长,设计便超越了风格本身,而成为了编织生活的艺术。本期案例,我们为一个幸福的四口之家,打造了一个兼具现代美学与实用关怀的安心之所,见证四口之家的成长点滴。
▇ 玄 关
推开家门,喧嚣被悄然隔绝。一个独具匠心的玄关缓缓展开,它不仅是归家的仪式感,更是空间之间的巧妙融合与过渡。利用原始结构的柱子,设计了白色的玄关柜体与温润的原木肌理形成对话,一侧巧妙延伸出的导台底座,与玄关结构浑然一体,无声地预告着内部空间的流动与关联。
▇ 客 厅
进入室内,客厅的画卷豁然开朗。无主灯的设计让顶面极致简约,点缀的光源勾勒出丰富的层次,光线成为这里唯一的主宰。黑与白的家具,线条利落,静静地陈述着现代主义的优雅。
客厅与阳台的隔墙被彻底打通,阳光毫无阻隔地洒入室内,延展了视觉,也放大了生活的尺度。阳台不再是传统的晾晒区,而是融入客厅,成为孩子们嬉戏玩闹的惬意角落。
▇ 餐 厅
开放式的厨房与餐厅一体相连,是家的情感中心。延续白色的橱柜,搭配原木色的餐边柜,冷静中透着温暖。宽敞的导台不仅是备餐的舞台,更是家人朋友聚集的社交核心。晨起的匆忙早餐,傍晚的烹饪闲谈,这里记录着每一天最真实的烟火气。
▇ 主 卧
主卧的入口,通过一道隐形的门扉被完美隐藏于墙面之中,守护着私密的宁静。步入其中,一个功能齐全的套房呈现眼前。它不仅是睡眠区,更是一个集休息、收纳、洗漱于一体的安心领地。延续公区的色彩与材质,营造出极度放松的睡眠氛围。
▇ 儿童房
考虑到两位年龄相近的女儿亲密的姐妹情谊,我们将她们安排在同一间卧室。房间内并排安置了两张舒适的单人床,为她们提供安心的休憩港湾。靠窗的位置,则规划了共同的学习空间,充足的光线与整洁的书桌,将陪伴她们度过无数个学习与成长的日夜。
而设计中,我们更着眼于未来。一个预留的儿童房静静等待,它将是孩子们长大后渴望独立空间时的最好礼物,让这个家能够随着她们的成长而“共同成长”。
▇ 阳 台
▇ 本案设计师
张 芳
博艺装饰设计总监
设计理念:设计来源于生活,根据建筑物的使用性质,合理化运用空间,打造一个舒适优美满足人们物质及精神生活需求的室内环境!
从业时间:15年
个人荣誉:
2023年度40 UNDER 40 (嘉兴)当代设计杰出青年
2021-2022老宅新生设计奖(嘉兴)十大改造设计师
2021-2022中国家装设计百强工匠
2021她设计年度优秀空间奖
2021 老宅新生设计奖
2019 她设计空间奖
2019 M+中国高端室内设计大赛省级TOP 全国城市TOP榜
2018 十一届大金内装设计大赛奖
2017 浙江省室内环境艺术设计大赛奖
2015 嘉兴装饰行业十佳设计师
代表案例:香港兴业璟逸湾、宝石公馆、洪合自建别墅、中南闻禾府叠加、虹阳自建别墅、新中国际、艺墅家…
邀约量房:
微信直接回复:地址+面积+姓名+手机号
或咨询电话/微信:13372313151 博艺装饰






