【博艺实景】与时光共舞,让生活自然纯粹
[所在城市]:嘉兴
[项目名称]:洪合自建房
[设计风格]:美式混搭
[房屋面积]:148m²
[项目设计]:博艺装饰工程有限公司
[主案设计]:王顾君
[实景摄影]:Beny

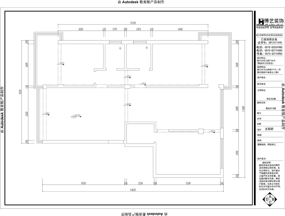
原始结构图

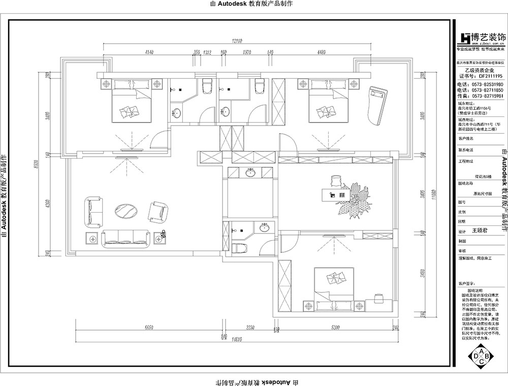
平面布置图
设计师寄语
在空间规划上因为是自建房所以整体都比较合理,空间也比较充足,而厨房的独立存在,使得楼层的生活用水显得比较不方便。于是我们在动线上规划一个水吧的位置,满足日常生活所需;在色彩上,我们选用目前比较流行的“中性”奶咖色,营造出一个雅致又极度舒缓的空间,再点缀以浓烈的红色,橘色,仿佛夜空中闪亮的星,那么美好,那么耀眼。
实景拍摄客厅



书房


过道



卧室



卫生间

本案设计师
王顾君
博艺首席设计师
设计理念:勤于沟通 重于大局 微于细节 贵于专业
工作时间:7年
代表案例:玖熙花苑、莫奈花园、信达香格里拉、英伦都市、御品公馆、新中国际...
邀约量房:
微信直接回复:地址+面积+姓名+手机号
或咨询电话/微信:13372313151 博艺装饰






