【博艺实景】《随·遇》康康280㎡ 别野 的生活哲学
[所在城市]:嘉兴·嘉善
[项目名称]:临江景苑
[设计风格]:现代简约
[房屋面积]:280m²
[项目设计]:博艺装饰工程有限公司
[主案设计]:颜兰懿
[实景摄影]:Beny
[项目主材]:欧神诺瓷砖、佳能暖通、欧派橱柜/衣柜、方平软装、巨卓家具……
随·遇
------------------------------------------------------------------------------------
想要一个家,可以避开纷扰,摆脱束缚,能听惊涛拍岸,看云卷云舒,不必刻意,随性自在。
——这是业主对理想中的家的畅想。
本案因为设计师与业主是比较熟悉朋友,所以配合起来比较默契,对业主的想法也是心领神会。
设计师以“随遇而安,随性自在”为主题,追求功能与审美的完美结合,让家美到赏心悦目,方便到触手可及,安逸舒适,自由愉悦。
空间上调整建筑原来的空间结构,重启功能和居住空间组织,材料上面着重表现材质的质感和色彩的搭配,强调设计与生活的完美结合。
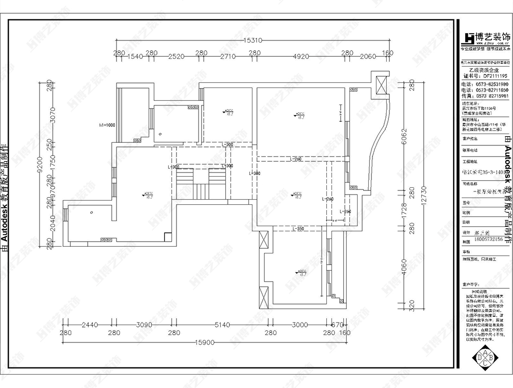
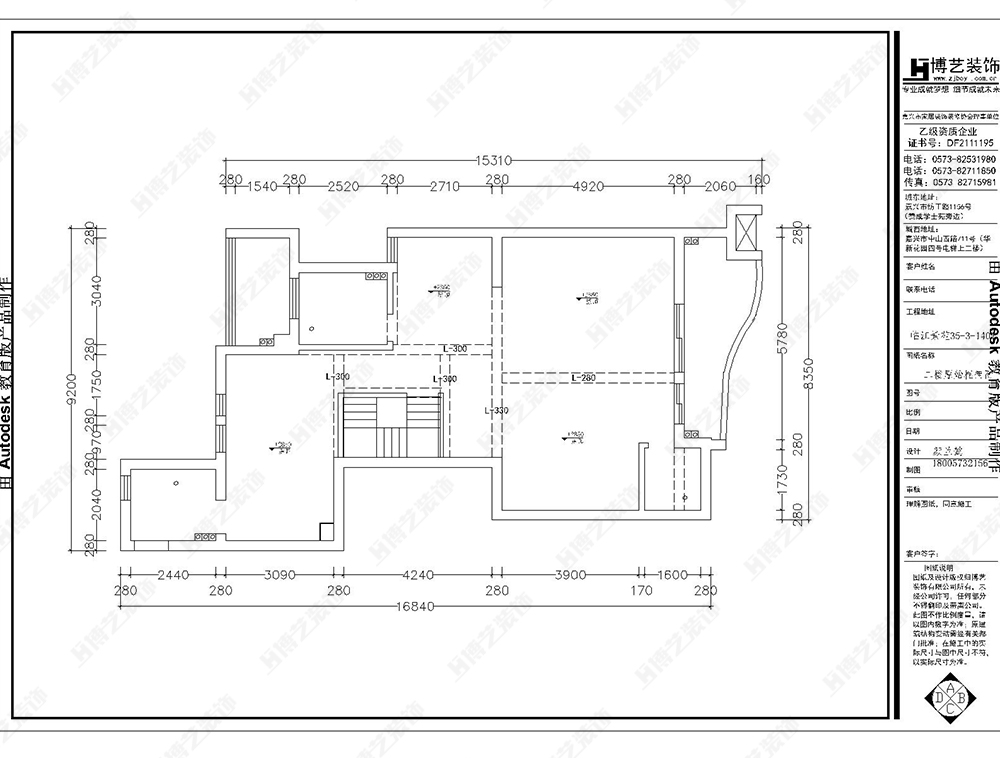
▼ 原始结构图

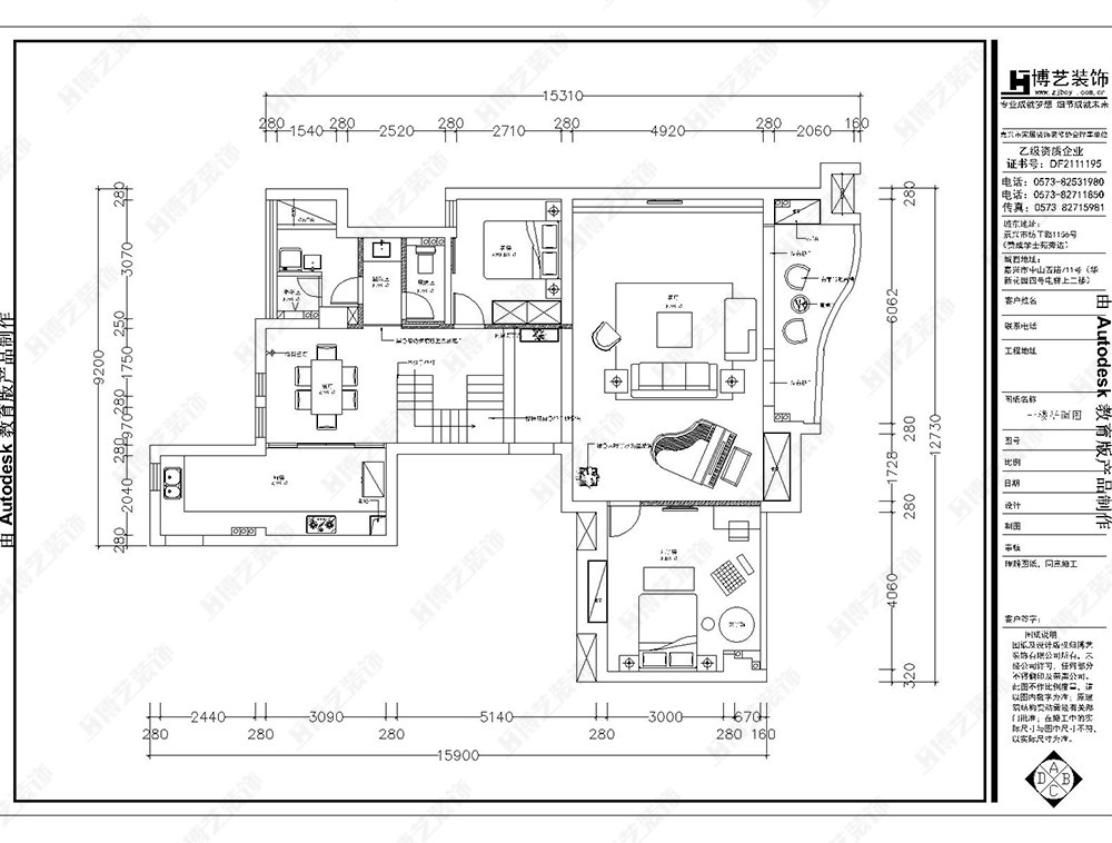
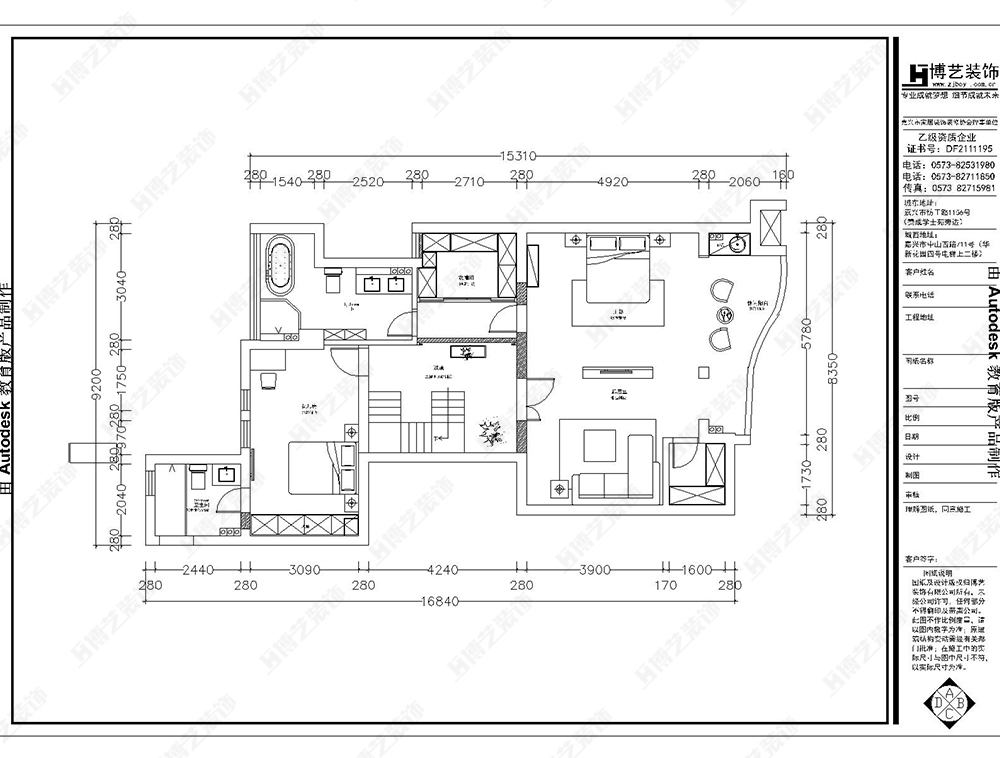
▼ 平面布置图


▼ 客 厅
采光通透,布置简约,设计师摈弃繁缛的装修,用最简单的基调,追求自然洒脱的居住状态。
通过光线的晕染,让黑色不显沉闷,让软装更加舒适,黑色与米色平衡了环境中的色彩,增加质感。
▼ 餐 厅
两扇落地窗保证了餐厅充足的光线,就餐时的心情也会不自觉的明媚起来。黑色大理石餐桌让空间变得沉稳,绿植的装饰又增添了一份生机。

▼ 主 卧
卧室采用蓝灰色墙面,搭配棕色木饰面与地毯,软硬结合,彰显主人气质。红色电视隔断又调整了空间的亮度,搭配简单的软装,不繁琐,不简单。

▼ 女儿房
女儿房以白色系为主,搭配了绿色墙面,清新自然,白色北极熊憨态可掬,女儿家的亭亭玉立一览无遗。
▼ 儿子房
男孩子的房间则以咖啡色为主,从墙面到木饰面,不同的色调搭配出不同的层次,朴素又不失雅致。
▼ 卫生间
卫生间依旧用深色表现温暖,泡上一个澡解除一天的疲乏,你的慵懒尽情释放。
▼ 厨房
超长操作台的设计拉开了空间维度,温柔的灯光搭配灰色橱柜,烹饪的心情都变得愉悦很多。
▼ 阳台
大片的阳光,两张吧椅,一杯咖啡,是属于你的下午茶时间。
▼ 本案设计师介绍
颜兰懿
博艺首席设计师
设计理念:让 灵感自由释放,创造一个心灵渴望的空间!
从业时间:10年
代表案例:罗马都市、铂金府邸、宝格丽公馆、宝石公馆、香缇世家…
邀约量房:
微信直接回复:地址+面积+姓名+手机号
或咨询电话/微信:13372313151 博艺装饰









