【博艺实景】140㎡ 新中国际 《简雅·生活》
房子之于人,是理性的需求,也是情感的诉求。设计师以“简敛优雅”为设计主轴,以低度彩色与温润木感作为空间基底,构筑舒适温润之空间,在有限的空间内,让舒适感得到最大化的表达。
[所在城市]:嘉兴
[项目名称]:新中国际
[设计风格]:现代简约
[房屋面积]:140m²
[项目设计]:博艺装饰工程有限公司
[主案设计]:张芳
[实景摄影]:Beny
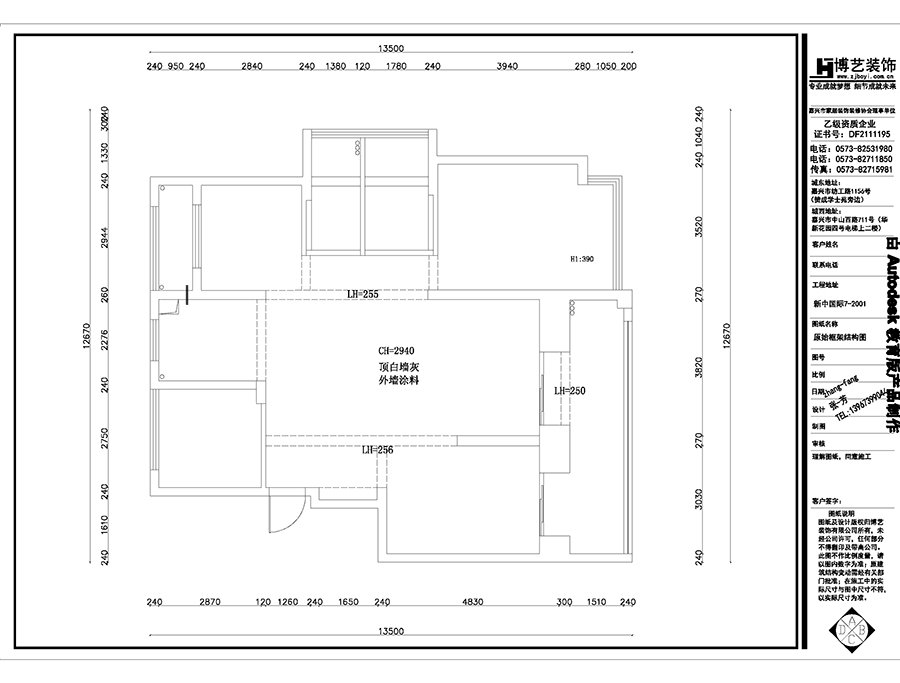
▼ 原始结构图
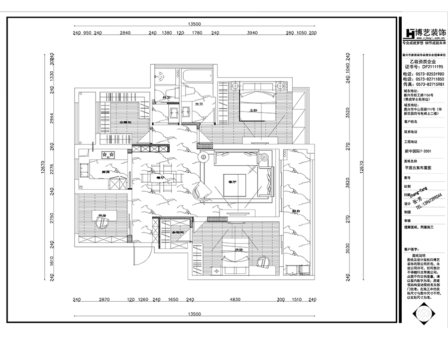
▼ 平面布置图
▼ 客厅
简单的色块与利落的线条,用木作的温度包融石材的冷淡,以“简、敛”之手法,把温暖与宁静留在家里。
▼ 餐厅
白色的空间让宁静延续,包融喧闹也温暖孤单,在这里细品家的味道……
▼ 卧室
▼厨房
▼ 卫生间
临窗舒适的泡澡,让你在都市喧嚣之外,偷得一寸轻松。
邀约量房:
微信直接回复:地址+面积+姓名+手机号
或咨询电话/微信:13372313151 博艺装饰






