微墅重构,让爱驻进家里 | 273㎡ 艺墅家
小区名称 / 艺墅家
户型面积 / 273m²
装修风格 / 现代轻奢
设 计 师 / 于俊
项目经理 / 江伦
装修公司 / 博艺装饰
实景摄影 / Beny
每个人的心中都有一幅关于家的蓝图,有宽敞的空间,有舒适的桌椅,有温馨的灯光,空气中还要弥漫着饭菜的香味……家,一定是让你舒适的地方。
设计师用极简的手法解构空间,重构后空间让生活的动线更完美,让空间的功能更大程度的释放。
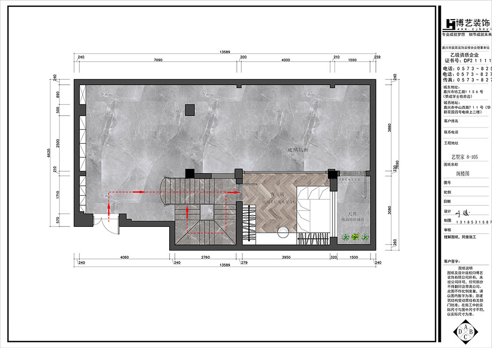
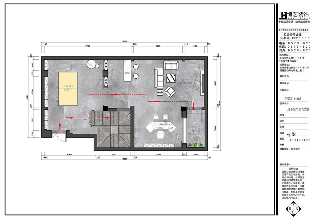
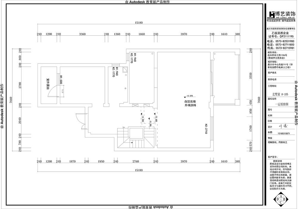
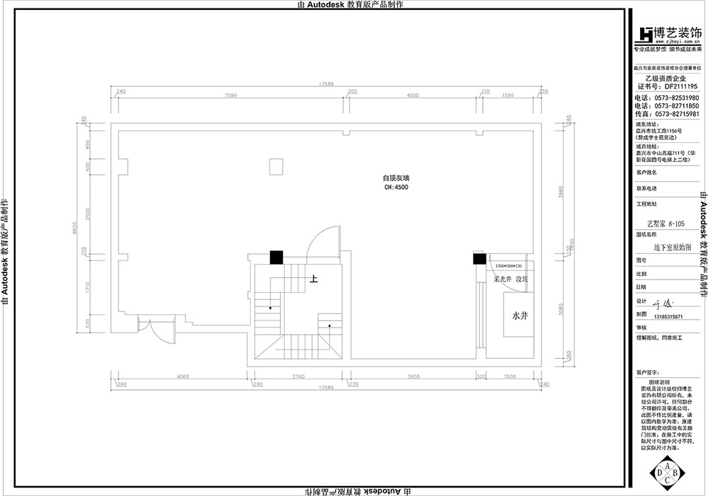
> 地下室原始图纸
> 地下室平面图纸

> 地下室阁楼平面图纸
地下室区域为整个房子的休闲娱乐区,设计师改变了原来楼梯的朝向,使得地下室的动线更为独立,互不影响;同时利用五米的层高优势,增加了一个客房,既增加了储物收纳又可做亲朋来访时的休息室。
摒弃繁复的设计,选择黑白灰的干练配置,在高挑的空间中,黑色低调却不容忽视的气场,不经意的撩拨着所有人的眼球。
音箱、话筒还有特意配置的水吧台,瞬间点燃气氛,嗨翻全场;累了可以安静下来看会书,写会字…休闲模式随意切换。
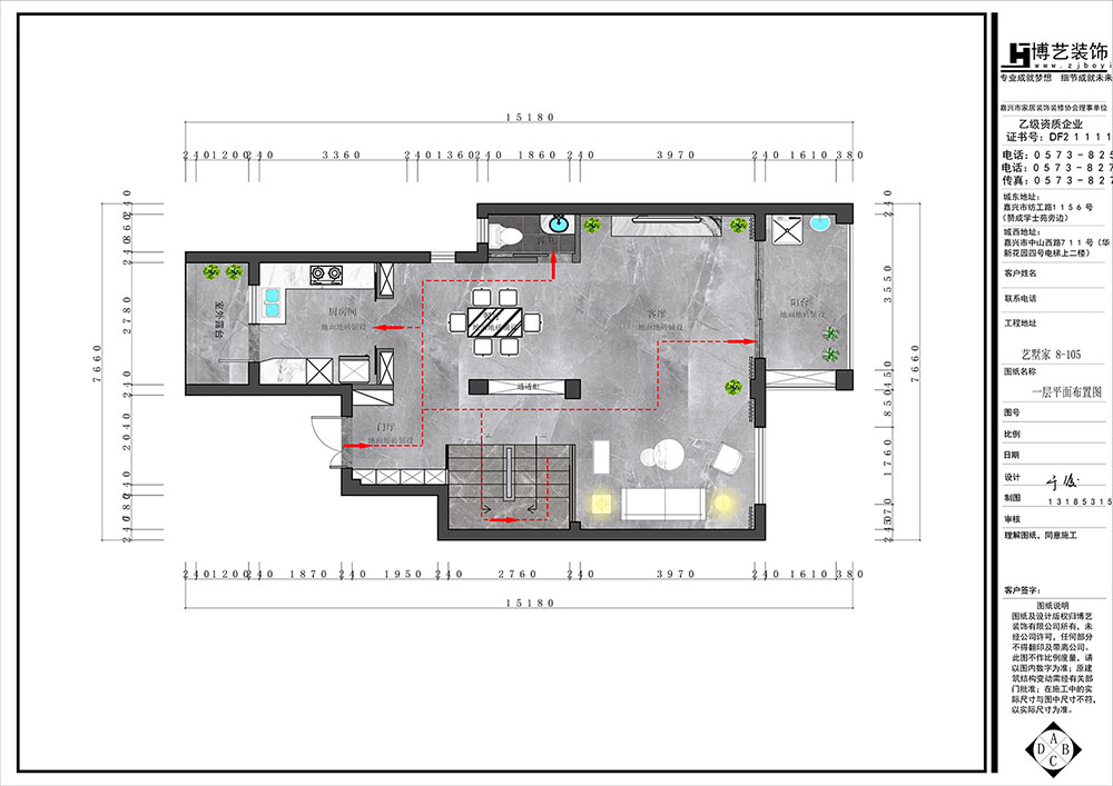
> 一楼原始图纸
> 一楼平面图纸
一楼主要是生活区域,包括厨房、客餐厅等。设计师利用北面阳台的区域,把厨房做后移,整个空间就形成了现在的南北通透的设计,痛风性更好,同时自然光也能更多的进入空间。
阳光铺洒进来,明明暗暗,为空间带来光明。用线条勾勒出的空间格调,延展的层次感,营造出优雅的美学感官。
开放的餐厅,饭菜的香味飘得更远,牵引你过来品尝家的味道,参与爱的交流。
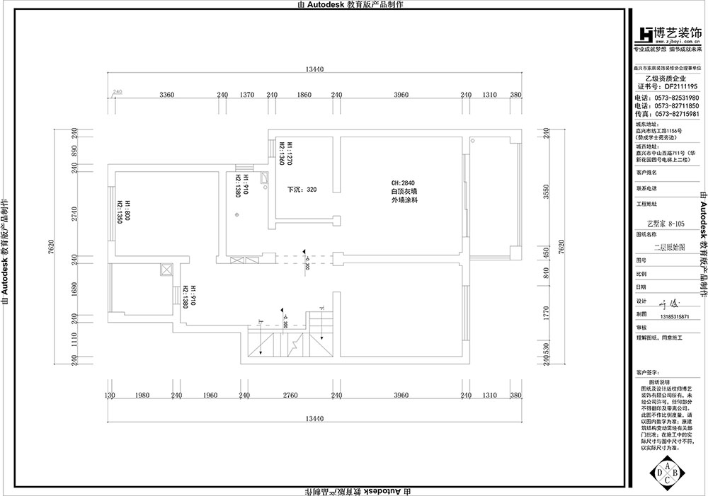
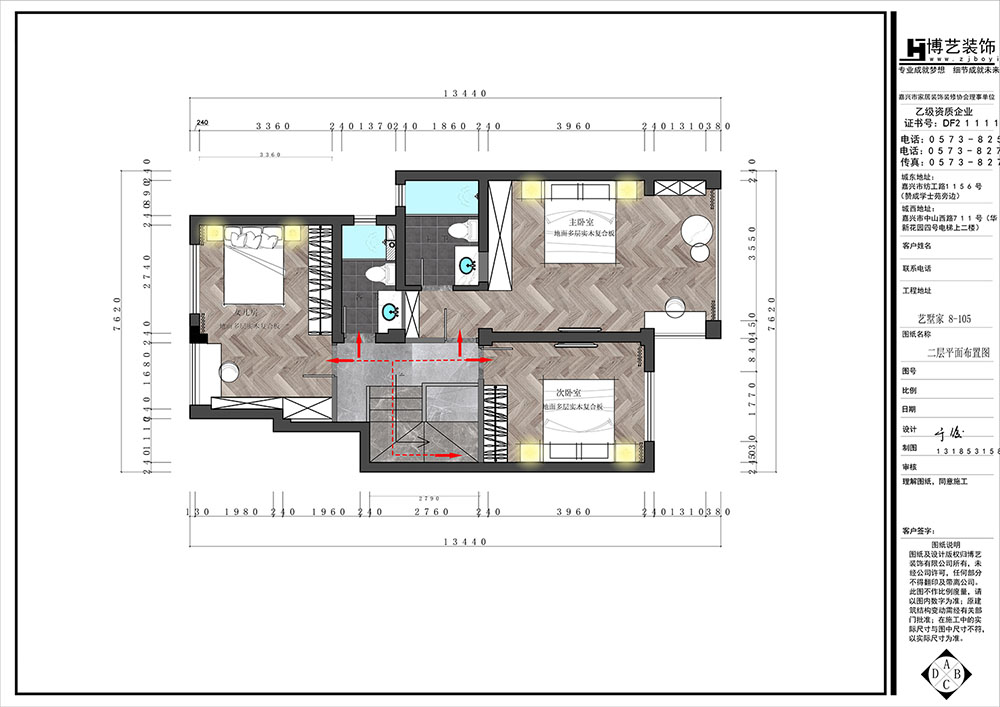
> 二楼原始图纸
> 二楼平面图纸
二楼主要是业主的休息区域,卧室都在这一层。把北面的储藏室与房间打通,作为女儿学习与休息的地方,外卫做干湿分离,提高空间的使用率。
粉白粉白的布置,轻轻柔柔,造型独特的粉色星星床,轻抚着一个又一个甜蜜而美好的梦乡。
低饱和的雾霾蓝,宁静自然的大自然色,使人感到平静,安抚着男孩子那天生的好动。
▼ 本案设计师
于 俊
博艺首席设计师
设计理念 / 设计源于生活,融与生活。
从业时间 / 13年
代表案例 / 罗马都市、巴黎都市、铂金府邸、晴湾、世贸花园、宝格丽公馆、江南润园、艺墅家、中粮一号院、信达香格里、香缇御峰…








邀约量房:
微信直接回复:地址+面积+姓名+手机号
或咨询电话/微信:13372313151 博艺装饰






