【博艺装饰】轻奢来袭,真真极有范 | 240㎡ 桐乡凤鸣公馆
小区名称 / 桐乡·凤鸣公馆
户型面积 / 240m²
装修风格 / 轻奢
设 计 师 / 强叶
项目经理 / 陆中新
项目质检 / 江宾
装修公司 / 博艺装饰
实景摄影 / Beny
轻奢,讲究的是精致,是比普通更考究,比奢华更自由,是对生活质感的追求。
一如本案业主对新家的期许,“于极简处见繁华”。设计师以流畅的线条,简约而不失时尚的设计理念演绎现代都市轻奢风,以精致来凸显品味。
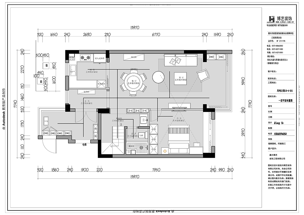
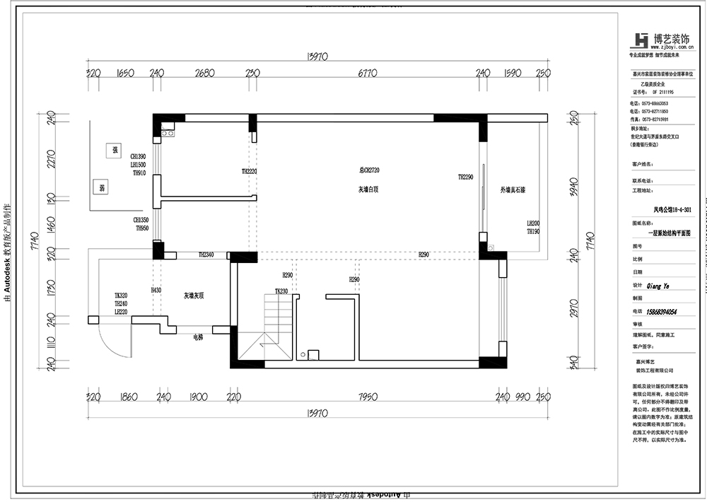
> 一楼原始结构图
> 一楼平面布置图

> 二楼原始结构图

> 二楼平面布置图

> 三楼原始结构图

> 三楼平面布置图
>>> 门 厅

敷一入门,大理石的拼花地面承载你回家的仪式感,白色的空间搭配出简单的高级。
>>> 客 厅





点、线、面的相助,共同勾勒出空间的层次感,最简单的方式,最直白的表达,你的故事从这里开始陈述。
丝绒沙发与毛绒抱枕妥妥的C位,慵懒又不失优雅的散发着高级的味道。光与影的律动赋予空间艺术的灵性。那只粉色小猪俏生生的存在,打破了这一室冷硬的气场,让生动降临。
暗色系墙面的映衬下,薄荷绿的这抹清新显得尤为生动,仿佛瞬间打开了味蕾,去迎接这美味佳肴,人间烟火。

同色系的白色空间,用不同浓度表现出来,萦绕着素雅的气质。去掉过多的装饰,最简单的表达,升起最温柔的温度。
主卫与卧室保持一样的基调,白色大理石与金属清冽的铺展,让卫浴间极具高级感。
>>> 书 房
>>> 厨 房




>>> 露 台

>>> 本案设计师
强叶
博艺首席设计师
设计理念 / 比别人多一点执着,你就会创造奇迹。
从业时间 / 8年
代表案例 / 祥生国玥公馆、碧桂园梧桐华府、欣盛华庭别墅、凤鸣公馆叠排、优优花园、星都会、雍华府、佳源珑府、吾悦华府、屠甸自建别墅、石门自建别墅…
邀约量房:
微信直接回复:地址+面积+姓名+手机号
或咨询电话/微信:13372313151 博艺装饰






