【博艺装饰】嘉善•大众湖滨 300m² | 欧式轻奢,华而不凡
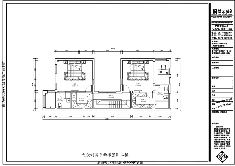
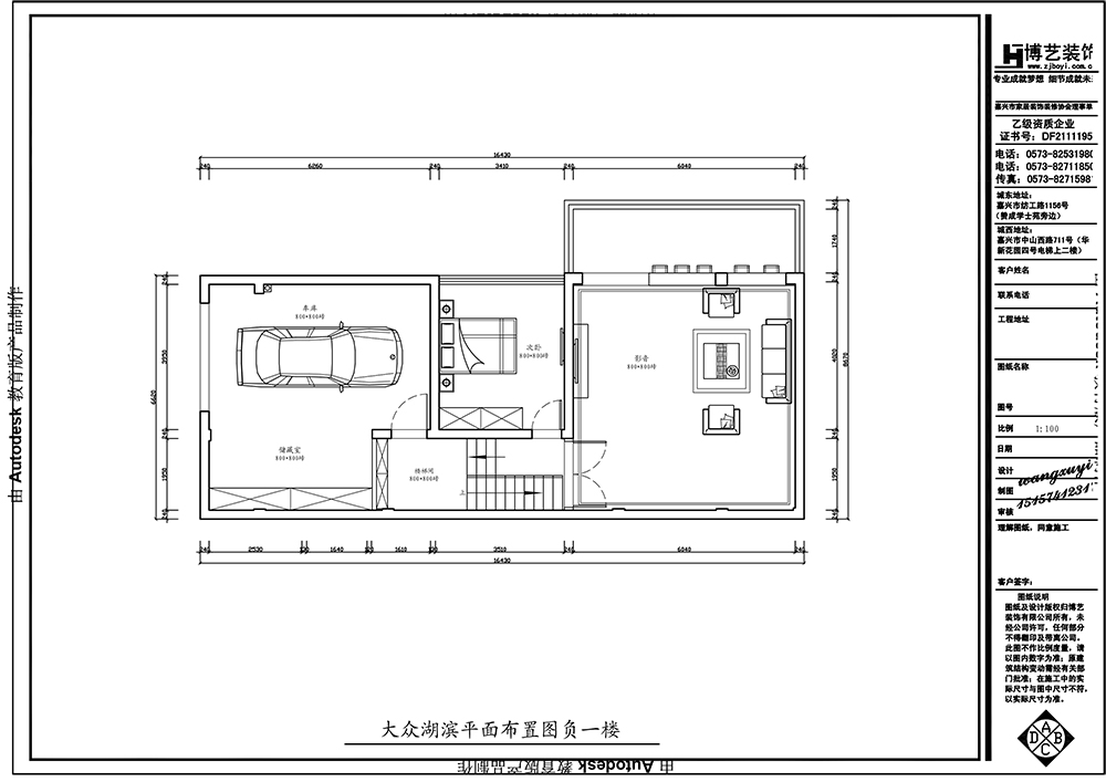
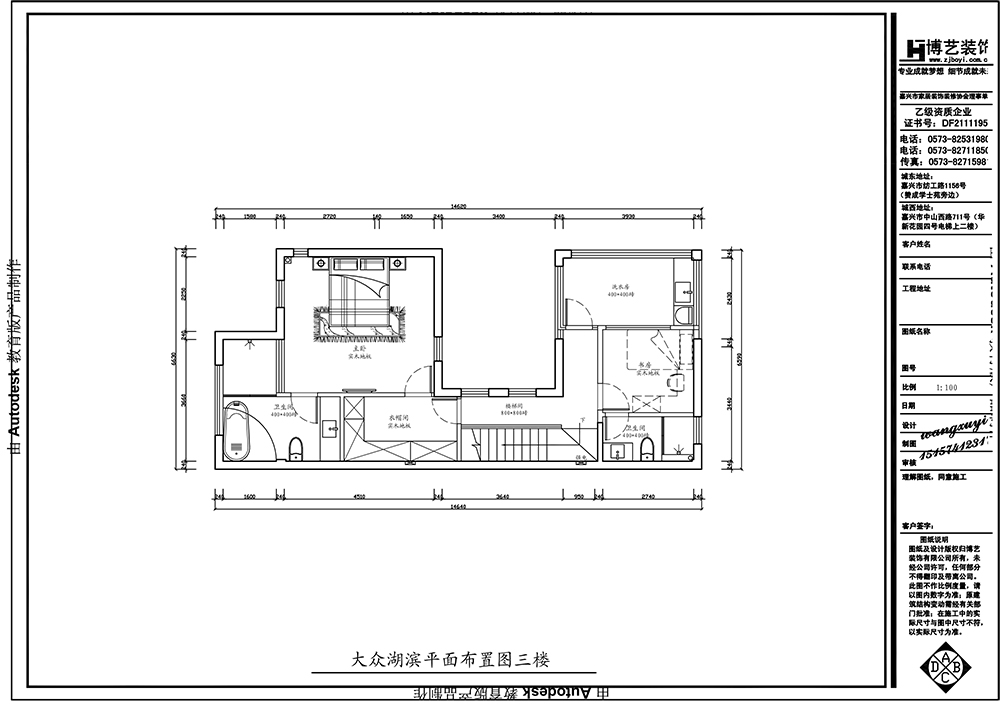
本案是一套四层复式,负一层为休闲娱乐区,一层做会客用餐区,二、三层为生活起居区。
设计师以古典欧式为设计底蕴,以简约的线条代替复杂的花纹,采用更为明快清新的颜色,演绎着现代生活的浪漫与舒适。
____________________________________________________________________________________________________
小区名称| 嘉善•大众湖滨
户型面积| 300m²
装修风格| 欧式
设 计 师| 王旭益
项目经理| 屈国卫
项目质检| 陆丽君
装修公司| 博艺装饰
实景摄影| Beny、鄧開基
~ 客 厅
进入客厅,以简约的线条勾勒出空间感和立体感,大理石的独特质感和纹理彰显空间的尊贵气息。
古典气派的欧式家具,配以精美的雕饰,复古中不失时尚的基调,体现出优雅与隽永的气度。
~ 餐 厅




餐厅在客厅与厨房之间,只在地面做简单的过渡,作为不同功能区的区别,视觉上更显通透敞亮。圆形的悬浮吊顶,简洁优雅,寓意团圆美好。

L型超长料理台,即使多人操作也不显拥挤,中西厨的配置,烹饪更加游刃有余。
岛台的设计既可做辅助使用,也可作餐厅的功能延续。
微微上挑的吊顶,提升整体舒适度。床背景是木饰面与硬包的组合大气优雅,集合复古的家具让卧室空间更显轻松温馨。
~ 卫 生 间
~ 楼 梯
~ 本案设计师
王旭益
博艺设计部经理
设计理念:用他人的财富创造自己的价值。
从业时间:13年
代表案例:南京天泓山庄、东方天郡;南京综合性环境设计事务所;盐城招商中
心办公楼;上海阳光威尼斯、宝宏家园、嘉定保利;嘉兴永安期货办公中心、盛大花园顶复、格林小镇顶复、翡翠花园联排、罗马都市、佳源都市、巴黎都市、东方普罗旺斯独栋、紫园尚园复式、嘉善自建独栋、中央花园顶复、临江景苑多层复式、金都上品、大众湖滨花园联排、滨湖绿洲多层复式、塞纳蓝湾顶复、嘉华春晓多层复式、东方润园联排、学仕华庄独栋、春晓苑联排、世博帝宝复式、大树星岛花园独栋、云澜湾七里花苑联排…
邀约量房:
微信直接回复:地址+面积+姓名+手机号
或咨询电话/微信:13372313151 博艺装饰






