【博艺装饰】溪悦水岸 99m² | 刚需私宅,悦己悦生活
简单的生活总是快乐,看四季不败的花,听莎莎吹响的风,褪去喧嚣,享受理想生活的幸福。
———————————————————————————————————————————————————
小区名称| 溪悦水岸
户型面积| 99m²
装修风格| 现代
设 计 师| 蒋文彬
装修公司| 博艺装饰
实景摄影| Beny
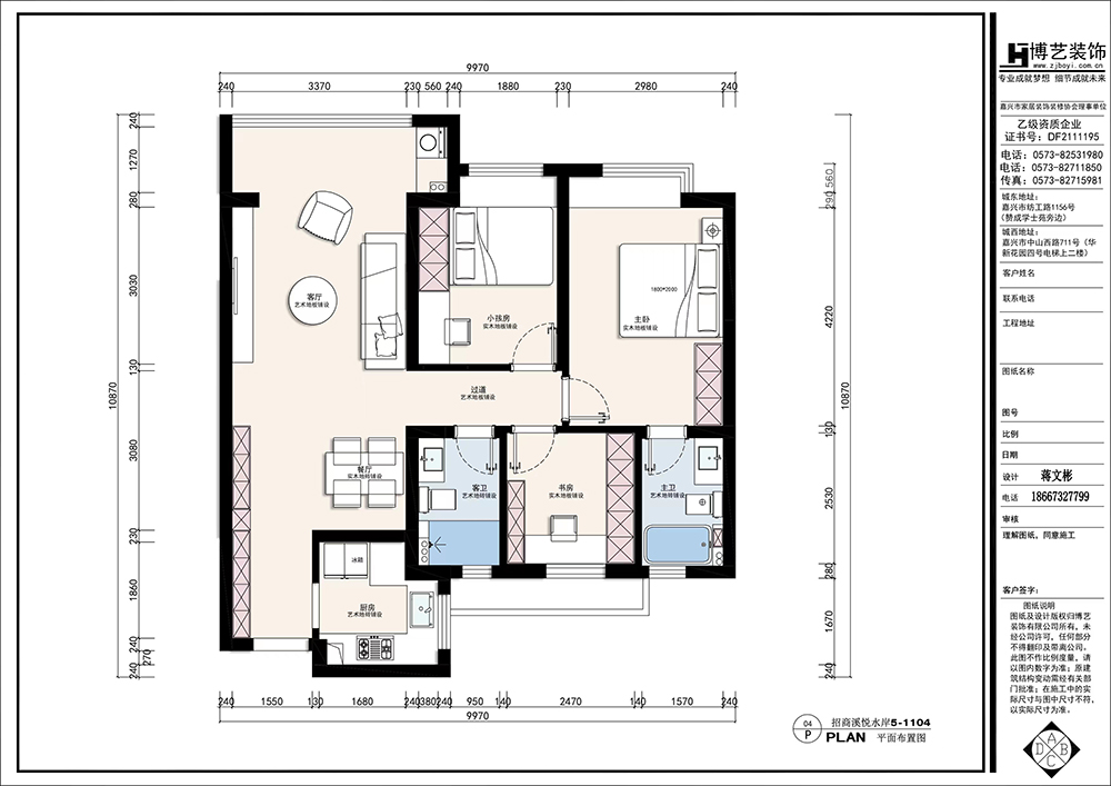
▲ 平面布置图
▲ 效果图
— 餐 厅
入门是一组延伸至餐厅的收纳柜,白色的柜面,朴素且优雅。散发的柔光是静静守候的家的温暖。
餐厅入眼一片素豆绿,仿佛清风佛面而来,自然的气息随风飘散。
白色餐桌搭配原木编织的桌椅,带来自然的温度。盛开的鲜花,是对生活小小的仪式感,带着美好品尝人间烟火。
— 客 厅
客厅连着阳台,让窗外的景色自觉的映入,搭配着万能的白色,自然得就是一幅风景画。
垭口的下梁被设计成一弯圆弧,泛起一室的柔软。鱼骨拼的地板彰显着自然的肌理与布艺的沙发共同组成温馨的家。
— 主 卧
主卧是白色与青绿的搭配,与白色的纱搭建的一个梦幻且唯美的空间。
利用衣柜打造的床头柜,镂空出一腔柔软,与床头的灯光一起笼罩这一床的柔情与蜜意。
— 卫生间
— 本案设计师
蒋文彬
博艺首席设计师
设计理念:设计就是改变客户的生活方式,提高生活品质,让客户更有幸福感。
从业时间:10年
代表案例:罗马都市、南德大院、优优花园、奥园黄金海岸、铂金府邸、烟雨名门、金色恬园…
邀约量房:
微信直接回复:地址+面积+姓名+手机号
或咨询电话/微信:13372313151 博艺装饰






