【博艺装饰】台昇御景园 135m² | 新中雅韵,寻生活新风尚
__________________
新中式的美是去掉繁琐的制式,仍保留中式意蕴的核心,在细节处追求对中式文化的追求,沉淀一份岁月静好。
———————————————————————————————————————————————————————————
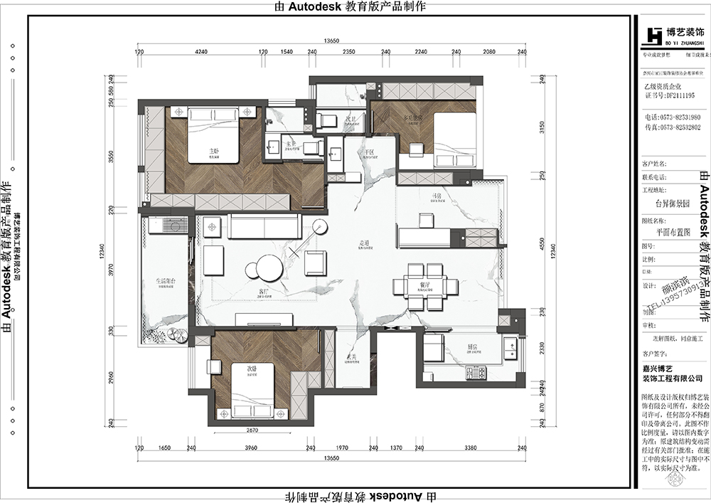
小区名称| 台昇御景园
户型面积| 135m²
装修风格| 新中式
设 计 师| 颜滨滨
项目经理| 汪小华
装修公司| 博艺装饰
实景摄影| Beny


\\ 客 厅




客厅是整个家庭空间的视觉中心,设计师用现代的设计手法去表现古典文化的设计语言。客厅用大面积的白色与代表质感的木质家具结合,无形中虚弱中式设计带来的肃重感和压抑感。
电视背景采用木饰面与岩板的结合,飘逸的纹理,似泼墨的意境,与沙发背景的山水遥相呼应。古典与现代交叉融合,蕴藏温润淡雅之意。
\\ 餐 厅





餐厅的一边不做实体的隔墙,而是用中式的镂空花格进行空间上的分割,这样的设计让书房隐衬于餐厅中,使餐厅的视觉得到延伸,空间上更显宽阔。
\\ 主 卧



主卧的设计依旧贯穿新中式的设计概念,木格栅与花鸟画以现代的工艺材质重新表现,呈现出品质的美感,透露着主人的品味。
\\ 次 卧


\\ 本案设计师
颜滨滨
博艺设计总监
设计理念:设计赋予灵魂,最重要的是用心。
从业时间:12年
代表案例:罗马都市别墅,御上江南别墅, 翡翠花园别墅,普罗旺斯别墅,宝石公馆,巴黎都市,翰林府邸别墅,南德大院,晴湾,元一柏庄,宝格丽,御品公馆,香格里…
邀约量房:
微信直接回复:地址+面积+姓名+手机号
或咨询电话/微信:13372313151 博艺装饰








