【博艺装饰】湖滨庄园 560m² | 以四季为景,与生活作伴
[小区名称] 湖滨庄园
[户型面积] 560m²
[装修风格] 现代极简
[设 计 师] 强叶
[装修公司] 博艺装饰
[实景摄影] Beny
本套案例的户型本身采光及通风性相当好,设计师利用户型结构的特点将自然环境和谐的并入设计当中,以四季为景,与生活作伴。
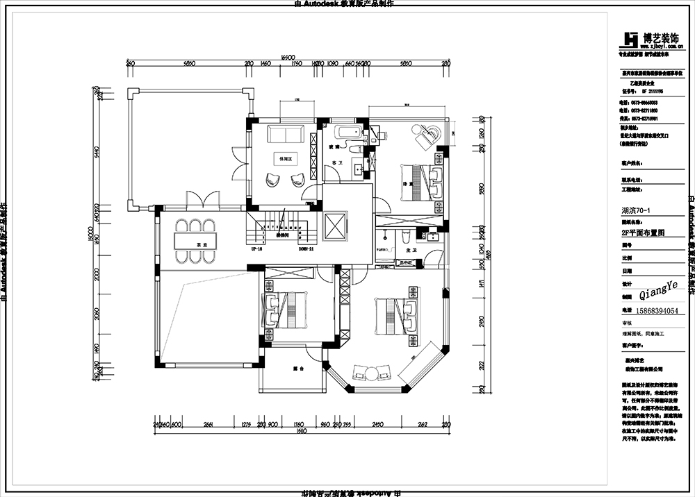
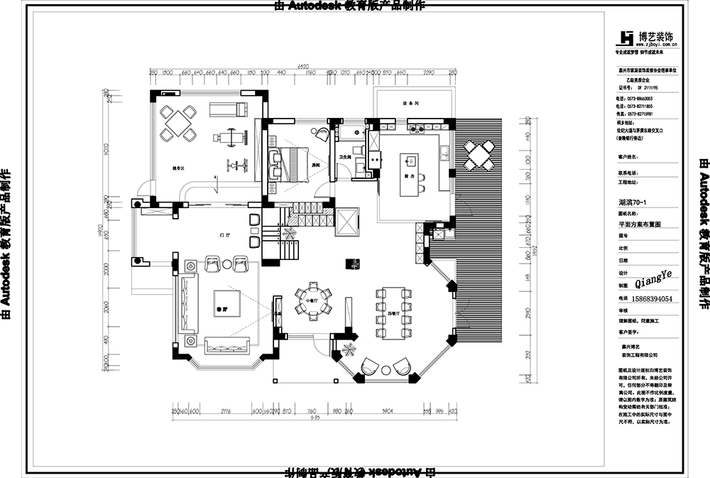
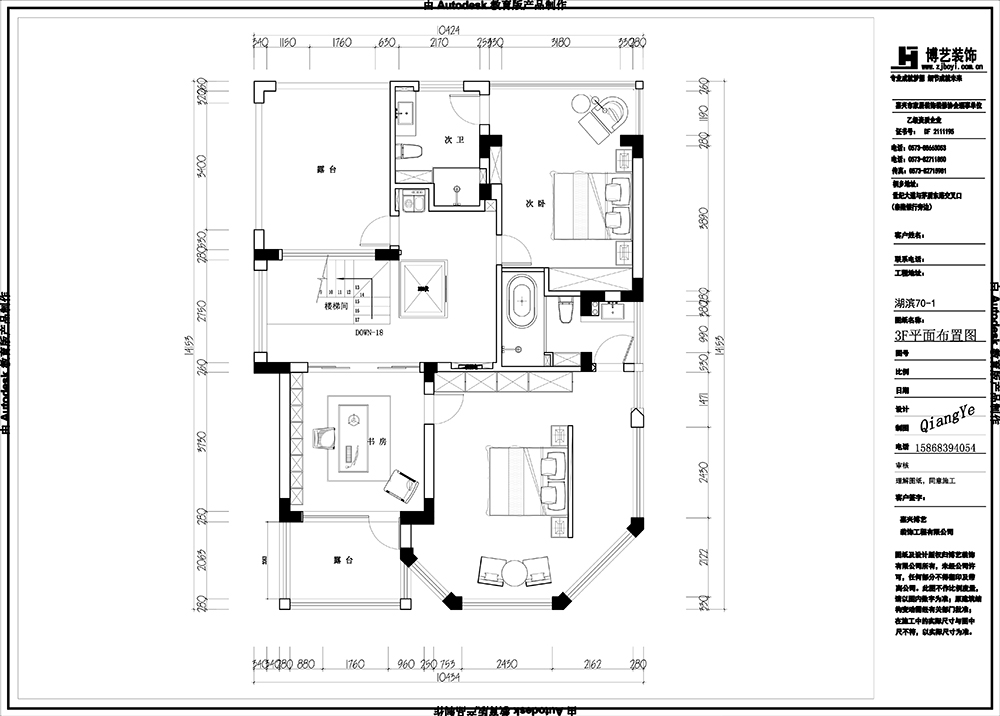
一层作为一家人生活的主要空间,除了客餐厅之外,为老人生活方便,我们将老人房安排在这一层,另外还配置了健身房,可供家庭健身、娱乐之所;二层、三层则作为主要的生活区域,隐私性更强,将卧室及配套主要安排在这两层。
玄 关
圆弧的大落地窗让空间更加的高挑,增加视觉美感的同时,自然光更好的进入空间,洒下阳光的味道。一组通顶的鞋柜满足了家庭收纳的需求,让门口的空间不再拥挤。
进入客厅,挑空的空间让人豁然开朗,压力在无形中消失了。利用客厅原本充足的采光条件,设计师采用极简的构思手法,不做多余的设计,以白搭的白色为“幕布”,让自然的光影在空间的有规律的舞动,变化流转让空间充满了生命力。
餐厅由中餐厅与西餐厅组成,中餐厅采用团圆的小圆桌,日常用餐,温馨和谐;西餐厅的大长桌则可满足亲朋聚餐之需,高谈阔论,举杯畅饮亦不会觉得拥挤。餐厅之间以矮柜做区域分隔,既不会让视线受阻,又可作收纳之用。
靠窗的位置放置着钢琴,良好的光线为练习创造条件,亦或是聚餐之时即兴一曲,为欢乐添一份韵律。
卧 室
为不辜负主卧环绕式的采光及无敌的视野,设计师在床头筑一道半高的墙体,整个空间形成回形动线,空间感更强;同时床靠着墙体让睡眠的时候也多了一份安全感,放松身心的状态让身体满血复活。
次 卧
利用墙体打造出的壁龛,让纯白有了生动,随手放置的读本与摆件更是生活的缩影。爱人在左,生活在右,共赴一场热爱。
客厅上方的茶室,或与好友相聚,闻楼下喧嚣,品人间欢乐;或独享一室静谧,悟生活真谛。
本 案 设 计 师
强 叶
博艺设计部经理
设计理念:比别人多一点执着,你就会创造奇迹。
从业时间:9年
个人荣誉:2021金住奖中国(桐乡)十大居住空间设计师
代表案例:悦湖湾,碧桂园梧桐华府,屠甸自建别墅,璟湖湾,梧桐花园,碧桂园凤鸣公馆,碧水云天,好来登,曼哈顿,雍华府…

邀约量房:
微信直接回复:地址+面积+姓名+手机号
或咨询电话/微信:13372313151 博艺装饰






