[博艺新作] 桐乡·佳源珑府 180m²|黑白色相,不褪色的经典
小区名称—佳源珑府
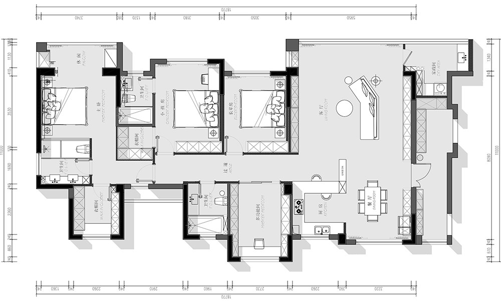
户型面积—180m²
装修风格—现代风
设 计 师—田丹妮
项目经理—陈长辉
装修公司—博艺装饰
实景摄影—Beny / 鄧開基
___________________________________________________
黑白·无色
当色彩全部退场,独独留下黑白。
离开熙熙攘攘,我们喜欢的还是自己的一方小小世界。
// 户 型 图
// 客 厅
客厅利用落差做斜切吊顶,结合无主灯效果弱化梁,拉高视觉点,将氛围感铺满。
黑白灰的主题空间,融入复古红色点缀,带来了温度,高级的同时又增加层次感,营造极具设计感的生活空间。
// 餐厅
餐厅采光优渥,室外的光线自然引入,白色为主的空间自带滤镜,柔和的环境更易拉近家人见的距离,让就餐的氛围更温馨和谐。
一边的橱柜抬高做水吧台,就餐或操作皆宜;延伸的一边做悬空柜,形成隔断避免开门见底,同时不影响整体空间的通透性,方便日常收纳。
奶茶色的卧室空间,黑色沉稳带来满满的安全感,深咖色的床靠与白色床品堆叠丰富空间层次感,舒适与温暖,柔暖的环境进入深沉睡眠。
淡淡的暖灰不厚重,不浓烈,优雅得像春日里的暖阳。温馨而安宁的环境让身体可以完全的放松,休息也更加舒坦。
// 卫生间
// 本案设计师
田丹妮
博艺首席设计师
设计理念:一户一设计,一家一方式。倾听、尊重、温度,寻求家的样子。
从业时间:7年
擅长空间:私宅、别墅、商业展示
代表案例:祥生国钥、佳源珑府、罗马都市、好来登…
邀约量房:
微信直接回复:地址+面积+姓名+手机号
或咨询电话/微信:13372313151 博艺装饰






